zum Kauf

Zwei Wohnungen in einem Haus

76351 Linkenheim-Hochstetten
Kaufpreis
349.000 €
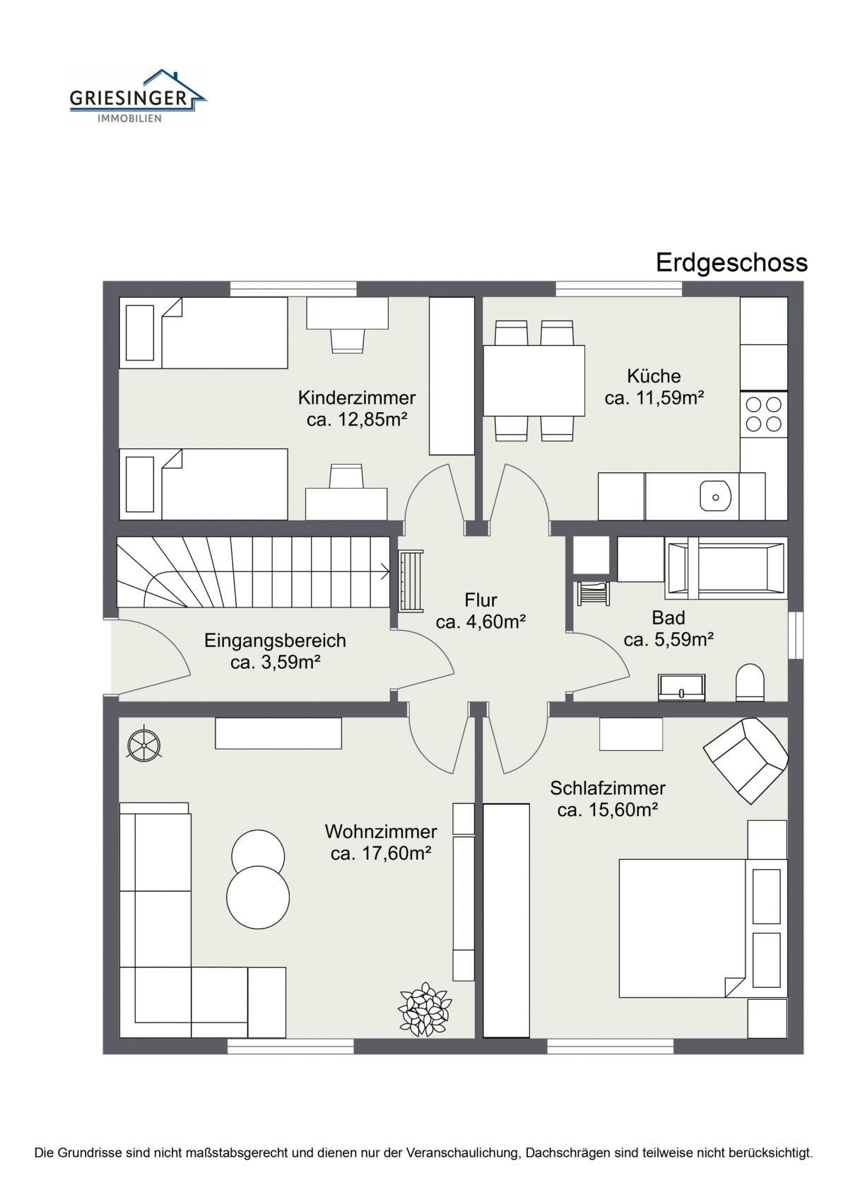
132,44 m² Wohnfläche
250,00 m² Grundstücksfläche
6 Zimmer

Objektangaben

Nutzungsart:
Wohnen
Objektart:
Zweifamilienhaus
Zimmer:
6
Badezimmer:
2
Baujahr:
1953
Zustand:
Teilweise renovierungsbedürftig
Ausstattung:
standard
Heizungsart:
Ofen
Befeuerung:
Öl
Unterkellert:
Ja

Kosten

Kaufpreis:
349.000 €
Käuferprovision:
3,57 % Käuferprovision inkl. MwSt., verdient und fällig mit Beurkundung des notariellen Kaufvertrages. Der Immobilienmakler hat einen provisionspflichtigen Maklervertrag mit dem Verkäufer in gleicher Höhe abgeschlossen.

Energieausweis

Ausweistyp:
Bedarfsausweis
Gültig bis:
2035-05-20
Endenergiebedarf:
417.62 kWh/(m²*a)
Energieträger:
OEL
Effizienzklasse:
H
Baujahr:
1953
Ausstellungsdatum:
1747785600
Gebäudeart:
Wohngebäude

Ansprechpartner

Michael Seidel
Jetzt Immobilie anfragen